Logo

Martin Frízel

Rodinný dům, 785 m2, Librantice

Librantice

Popis

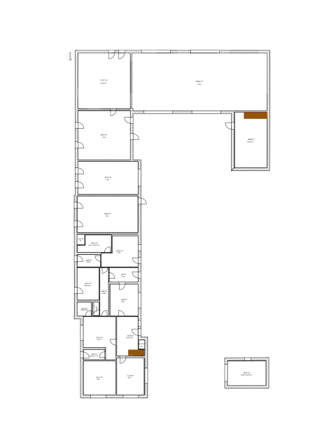
Nabízíme Vám ve výhradním zastoupení k prodeji rozsáhlou částečně zrekonstruovanou zemědělskou usedlost v obci Librantice (na okraji Hradce Králové s dojezdem do 10 min) s užitnou plochou cca 785 m2 (lze dále rozšířit o celé 2. NP - podkroví, které v současné době není využité, možnost využití i 3. NP). Část uzavřeného statku je zrekonstruována a v současné době slouží jako velkorysá rekreační chalupa (dříve sloužila k trvalému bydlení). Celý objekt je napojen na inženýrské sítě jako kanalizace, elektřina, plyn, voda vlastní zdroj ze studny, která je umístěna uvnitř stavby. Zahrada je rozdělena na dvůr (zděný plot se vstupní bránou a brankou, zahradní dům/garáž) a dále na zadní zahradu. Výhodou tohoto objektu je naprosté soukromí s dostatečným prostorem pro další budování obytných i užitných částí, velká zahrada a krásná stodola (vše cca 2.182 m2). Volné ihned. Pro více informací či pro domluvení prohlídky kontaktujte makléře.

11 990 000 Kč

Hypotéční kalkulačka
od 55 611 Kč měsíčně

ID zakázky 3741947
Aktualizace 16. 4. 2026
Druh objektu Zděná
Stav objektu Dobrý
Plocha pozemku 2 182 m2
Užitná plocha 785 m2

Kontaktujte mě

K nemovitosti zajistíme

Financování

Financování

Zajistíme nejvýhodnější financování nového domova. Jsme v přímém kontaktu se všemi bankami, kde konzultujeme vaše požadavky a představy. Připravíme vždy několik variant řešení, ze kterých společně vybereme tu nejlepší právě pro vás.

Energie

Energie

Zajistíme nejen výhodný tarif na míru, ale i kompletní přehlášení a administrativu s tím spojenou. Nemusíte se tak o nic starat, potřebné dokumenty a převod zajistíme za Vás.

Interiéry

Interiéry

Naši designéři se postarají, abyste se v novém domě cítili opravdu doma. Změna stávajícího interiéru je pro nás hračka. Ať už chcete zařídit dětský pokoj nebo rovnou celý dům, naši interiéroví designéři Vám pomohou vybrat barvy, sladit váš stávající nábytek nebo navrhnou celý interiér.

Pojištění

Pojištění

Chráníme váš majetek. Ať už potřebujete pojištění ochrany majetku proti požáru či povodni, pojištění proti úrazům nebo neschopnosti splácet, navrhneme vám nejvýhodnější řešení dle vašich potřeb. Pro naše klienty vybíráme to nejlepší z desítek bank a pojišťoven.

Investice

Investice

Uvažujete, kam investovat peníze z prodeje nemovitosti? Investujte s námi tam, kde to dobře známe a získejte možnost zhodnotit své peníze. Máme pro Vás připravenou nabídku investování do nemovitostních projektů s výnosy investičního fondu od 6 % ročně.

Technologie

Technologie

Nabízíme řešení hybridních fotovoltaických elektráren a chytrého bydlení ve spolupráci se společností LOXONE, pro maximální efektivitu a úsporu energií ve vašem novém domově.

Stěhování

Stěhování

Pomůžeme vám ukončit bez starostí i jeden z posledních kroků a rádi vás do nového domova i přestěhujeme.